โรงงาน / โกดัง - HRR3F0004

อสังหาริมทรัพย์ - ภาพรวม
|
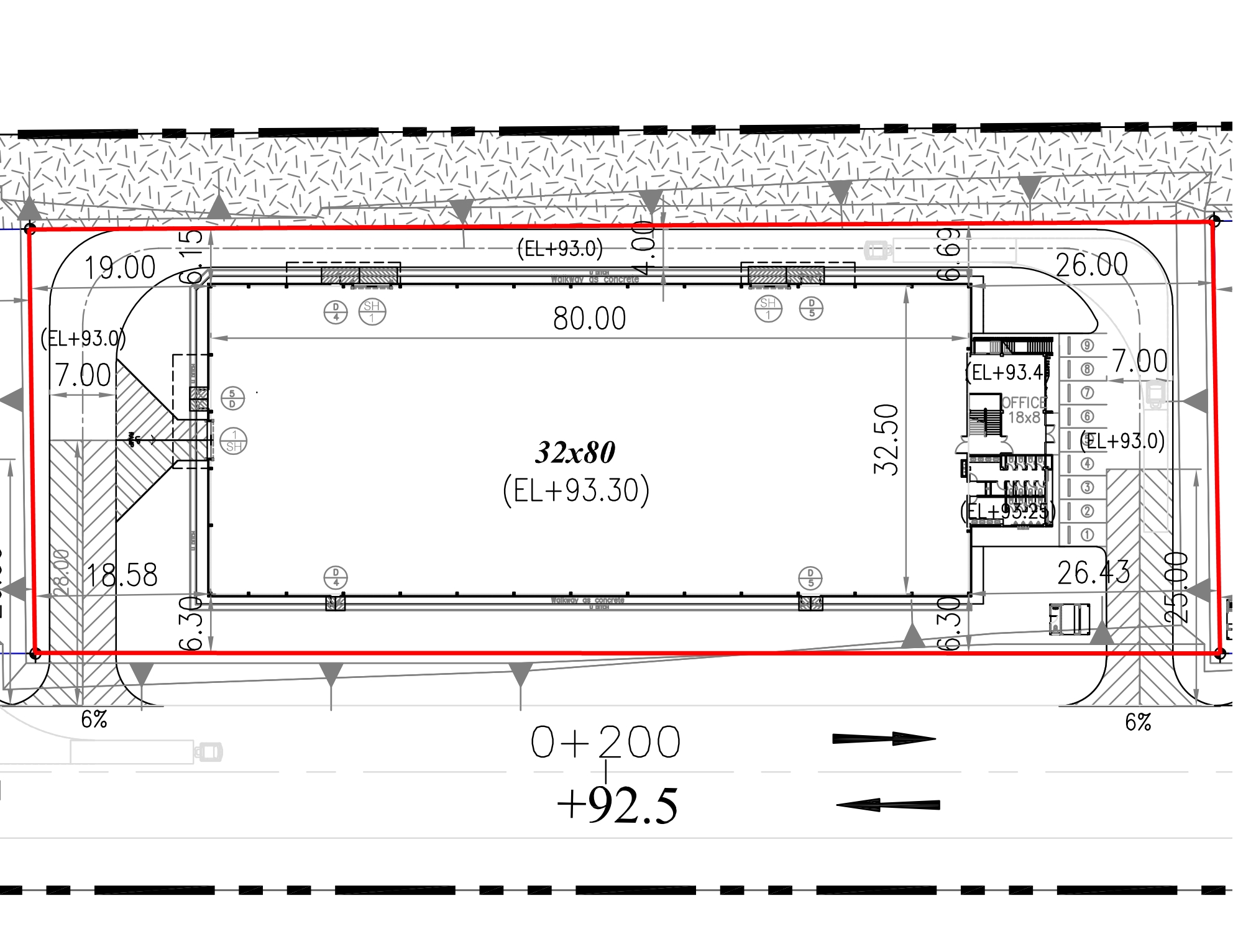
พื้นที่อาคารโดยรวม
2,848 ㎡พื้นที่โรงงาน / โกดัง : 2,560 ㎡
พื้นที่ออฟฟิศ : 288 ㎡ ขนาดอาคาร : 32X80 m. ประเภทอาคาร : อาคารเดี่ยว ขนาดพื้นที่ที่ดิน
3-2-14.6 ไร่ (5,658.4 ㎡)
ประเภทเขตพื้นที่ เขตอุตสาหกรรมทั่วไป
|
ค่าเช่า
569,600 บาท / เดือนราคาต่อตารางเมตร : 200 บาท / ㎡ / เดือน • อาจมีค่าใช้จ่ายเพิ่มเติมในแต่ละเดือนนอกเหนือจากค่าเช่า ดูข้อมูลเพิ่มเติมด้านล่างหรือสอบถามก่อนตัดสินใจ
วันที่สามารถเข้าใช้ได้ เข้าใช้ได้ตอนนี้
|
• รายละเอียดเกี่ยวกับค่าใช้จ่ายและเงื่อนไขเพิ่มเติม ดูข้อมูลด้านล่าง
• ข้อมูล ราคา และเงื่อนไขใดๆ ของอสังหาริมทรัพย์นี้ ได้รับมาจากการแจ้ง และสงวนสิทธิ์ในการเปลี่ยนแปลงใดๆ โดยไม่ต้องแจ้งให้ทราบล่วงหน้า โดยเจ้าของอสังหาริมทรัพย์, ทางเว็บไซต์ของเราไม่สามารถการันตีความถูกต้องของข้อมูลจากการเปลี่ยนแปลงดังกล่าว ดังนั้นผู้ซื้อหรือผู้เช่า จะต้องตรวจสอบความถูกต้องของ ข้อมูล ราคา และ เงื่อนไข กับทางเจ้าของอสังหาริมทรัพย์อีกครั้ง ก่อนที่จะตัดสินใจทำข้อตกลงหรือสัญญาใดๆ
• ข้อมูล ราคา และเงื่อนไขใดๆ ของอสังหาริมทรัพย์นี้ ได้รับมาจากการแจ้ง และสงวนสิทธิ์ในการเปลี่ยนแปลงใดๆ โดยไม่ต้องแจ้งให้ทราบล่วงหน้า โดยเจ้าของอสังหาริมทรัพย์, ทางเว็บไซต์ของเราไม่สามารถการันตีความถูกต้องของข้อมูลจากการเปลี่ยนแปลงดังกล่าว ดังนั้นผู้ซื้อหรือผู้เช่า จะต้องตรวจสอบความถูกต้องของ ข้อมูล ราคา และ เงื่อนไข กับทางเจ้าของอสังหาริมทรัพย์อีกครั้ง ก่อนที่จะตัดสินใจทำข้อตกลงหรือสัญญาใดๆ
ก่อสร้างใหม่ |
แก้ไขล่าสุด || 21 เม.ย. 2569
คอมเมนต์
โรงงานขนาดกลาง สภาพใหม่ มีถนนคอนกรีตรอบโรงงาน โรงงานนี้มีประตูทางเข้าหลักกว้างเป็นพิเศษ ตั้งอยู่ในนิคมคมอุตสาหกรรม WHA ระยอง 36 ซึ่งเป็นที่ตั้งของโรงงานในอุตสาหกรรมรถยนต์ EV ขนาดใหญ่ หลายโรงงาน การขนส่งสะดวก อยู่ไม่ไกลจากท่าเรือแหลมฉบัง และมาบตะพุต
วิดิโอโดรน 4K
สถานที่
จังหวัด
ระยอง
ประเภทผังเมือง
สีม่วง (อุตสาหกรรม, โรงงานและโกดัง)
เงื่อนไขการเช่า
ภาษี & ค่าธรรมเนียม
ภาษีโรงเรือน : จ่ายคนละครึ่ง
ภาษีหัก ณ ที่จ่าย (5% / เดือน) : จ่ายคนละครึ่ง
ภาษีหัก ณ ที่จ่าย (5% / เดือน) : จ่ายคนละครึ่ง
• ในกรณีการเช่า นอกเหนือจากค่าเช่าปกติ ผู้เช่าจะต้องชำระภาษีโรงเรือนเพิ่มอีก
ระยะเวลาทำสัญญาขั้นต่ำ
3 ปี
ค่ามัดจำสัญญา
3 เดือน
ระบบโครงสร้างพื้นฐาน
การรับน้ำหนักของพื้น
รองรับมากที่สุด : 5 ตัน / ตร.ม.ความสูงจากพื้นถึงโครงสร้างหลังคา
ความสูงมากที่สุด : 7 เมตรไฟฟ้า
มีเฉพาะระบบไฟฟ้าปกติและไฟฟ้าแสงสว่าง ไม่มีระบบไฟฟ้า / หม้อแปลง / แผงควบคุม สำหรับการใช้งานในโรงงาน, ต้องติดตั้งเองหากต้องการประปา
มีเฉพาะระบบประปาปกติ ไม่มีสำหรับรองรับการใช้งานสำหรับอุปกรณ์โรงงาน, ต้องติดตั้งท่อและปั๊มเองหากต้องการการตกแต่งภายในอาคาร
ไม่มี (ต้องก่อสร้างเพิ่ม)ระบบโทรศัพท์
ไม่มีระบบสาย ตู้สาขา เครื่องโทรศัพท์, ต้องติดตั้งเองหากต้องการระบบอินเตอร์เน็ต
ไม่มี ต้องติดต่อผู้ให้บริการ และติดตั้งเองหากต้องการระบบเครื่องปรับอากาศ
โรงงาน : ไม่มี (ต้องติดตั้งเอง ถ้าต้องการ)ออฟฟิศ : ไม่มี (ต้องติดตั้งเอง ถ้าต้องการ)
สิ่งอำนวยความสะดวก
การป้องกันไฟไหม้
● ถังดับเพลิง / ท่อดับเพลิง● สัญญาณเตือนไฟไหม้
● เครื่องตรวจจับควัน


























