Factory / Warehouse - YMT1F0023


|
Property - Overview
|
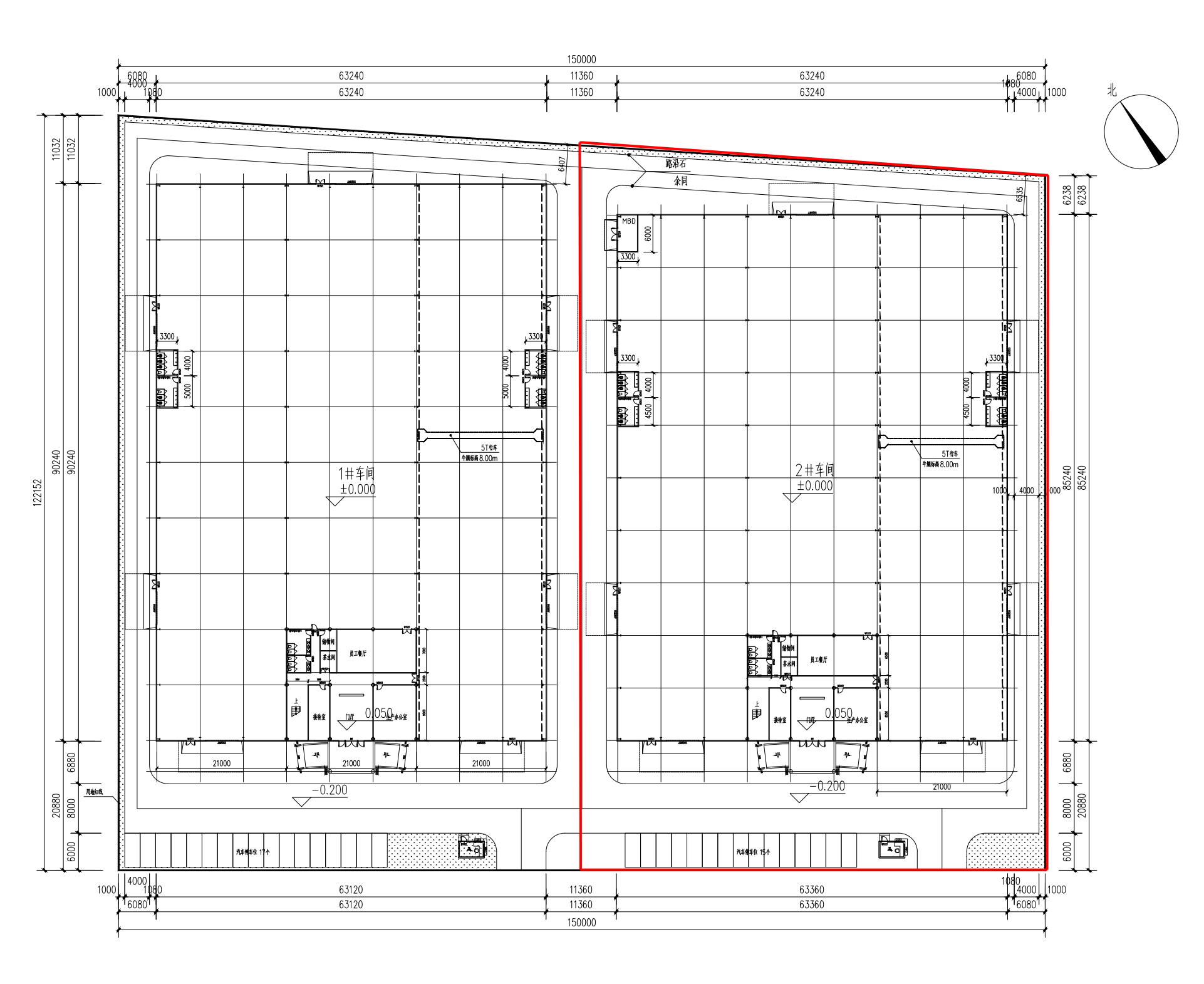
Total Building Area
11,760 ㎡Factory / Warehouse Area : 11,025 ㎡ Office Area : 735 ㎡ Building Type : Detach 2 Unit
Land Area
10.97275 Rai (17,556.4 ㎡)Approximate size. Zone Type General Zone
|
Rental
2,352,000 Baht / Month(Approx. 72,912 USD / Month) Price per ㎡ : 200 Baht / ㎡ / Month (Approx. 6 USD / ㎡ / Month) • May have monthly expenses more than just monthly rent. See information below or ask before make any decision.
Price
350,000,000 Baht(Approx. 10,850,000 USD) • Total price (included taxes, fee, commission) :
Approx. 361,235,000 Baht Available Date CONTRACTED
|
• 1Baht = About 0.031 USD, 1USD = About 32.18 Baht (Refer to Bangkok Bank currency transfer rate on 29 Oct 2025)
• More information about additional cost and condition, please see below.
• Information, price and condition of this property provided and also reserved the rights to change without notice by the property owner. Thai-Koujyo.com can't guarantee any change of that. Buyer or lessor have to confirm the final information, price and condition with the property owner before making any contract.
• Information, price and condition of this property provided and also reserved the rights to change without notice by the property owner. Thai-Koujyo.com can't guarantee any change of that. Buyer or lessor have to confirm the final information, price and condition with the property owner before making any contract.
New Construction |
Good Access |
Many Interest |
Last Update || 25 Sep 2025
4K Drone Gallery
Location
Province
Chonburi
City Zoning
Purple (Industrial and Warehouse)
Common Fee
Land
General Zone : 1,400 Baht / Rai / Month
Rent Condition
Tax & Fee
Property Tax : Excluded (Tenant Pay)
Withholding Tax (5% / Month) : Excluded (Tenant Pay)
Withholding Tax (5% / Month) : Excluded (Tenant Pay)
• In case of rent, tenant have to pay property tax beside the common rental fee.
Minimum Contract Period
3 Year(s)
Contract Deposit
3 Month(s)
Advance Payment
1 Month(s)
Interior Condition
Interior Deposit : Need
Sale Condition
Tax & Fee
Transfer Fee (2%) : Seller Pay
Special Business Tax (3.3%) : Seller Pay
Withholding Tax (1%) : Seller Pay
Special Business Tax (3.3%) : Seller Pay
Withholding Tax (1%) : Seller Pay
Payment Condition
1.Signing contract 30%
2.Transfer within 45 days for 70% (After sign contract)
2.Transfer within 45 days for 70% (After sign contract)
Infrastructure
Floor Loading
Max. Loading : 3 Ton(s) / sq.m.Clearing Height
Min. Height : 11.5 m.Electricity
Only electric system and lighting for basic usage. Don't have electric system, transformer, MDB for industrial usage. Require installation if needed.Water Supply
Only water supply for basic usage. Don't have water system for factory equipments. Require plumbing work and pump installation if needed.Interior Decoration
Don't have. (Require construction)Telephone System
Don't have wiring, PBX, telephone. Require installation if needed.Internet System
Don't have. Require contract ISP (internet service provider) and installation if needed.Air Condition System
Factory : Don't have. (Self install, if need)Office : Don't have. (Self install, if need)
Facilities
Security
● Shared Security (Security Gate)● Guard House






























