โกดังเก็บสินค้า - SWLPW0009

อสังหาริมทรัพย์ - ภาพรวม
|
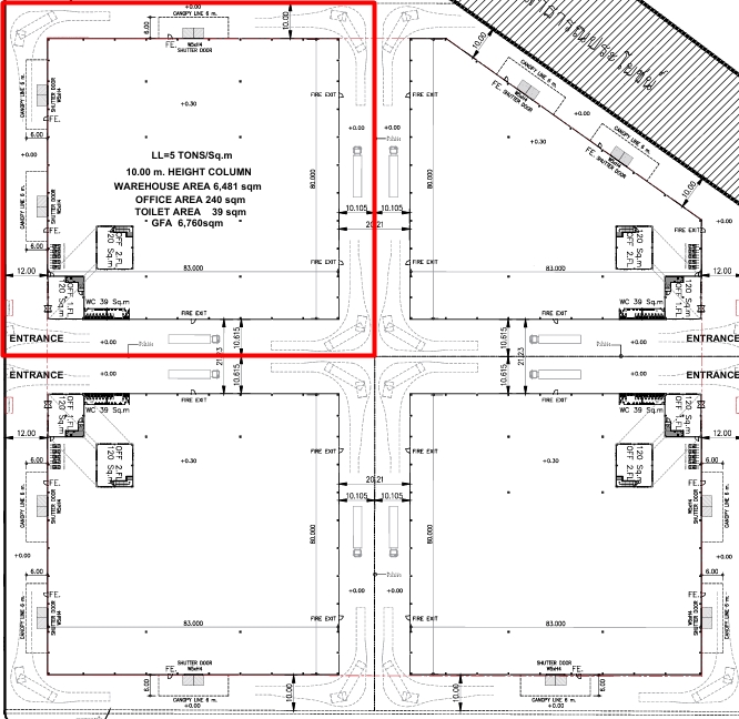
พื้นที่อาคารโดยรวม
6,760 ㎡พื้นที่โกดัง : 6,481 ㎡
พื้นที่ออฟฟิศ : 240 ㎡ พื้นที่อื่นๆ : 39 ㎡ ประเภทอาคาร : อาคารเดี่ยว ประเภทเขตพื้นที่ เขตอุตสาหกรรมทั่วไป
|
ค่าเช่า
1,284,400 บาท / เดือนราคาต่อตารางเมตร : 190 บาท / ㎡ / เดือน • อาจมีค่าใช้จ่ายเพิ่มเติมในแต่ละเดือนนอกเหนือจากค่าเช่า ดูข้อมูลเพิ่มเติมด้านล่างหรือสอบถามก่อนตัดสินใจ
วันที่สามารถเข้าใช้ได้ ต.ค. 2569
|
• รายละเอียดเกี่ยวกับค่าใช้จ่ายและเงื่อนไขเพิ่มเติม ดูข้อมูลด้านล่าง
• ข้อมูล ราคา และเงื่อนไขใดๆ ของอสังหาริมทรัพย์นี้ ได้รับมาจากการแจ้ง และสงวนสิทธิ์ในการเปลี่ยนแปลงใดๆ โดยไม่ต้องแจ้งให้ทราบล่วงหน้า โดยเจ้าของอสังหาริมทรัพย์, ทางเว็บไซต์ของเราไม่สามารถการันตีความถูกต้องของข้อมูลจากการเปลี่ยนแปลงดังกล่าว ดังนั้นผู้ซื้อหรือผู้เช่า จะต้องตรวจสอบความถูกต้องของ ข้อมูล ราคา และ เงื่อนไข กับทางเจ้าของอสังหาริมทรัพย์อีกครั้ง ก่อนที่จะตัดสินใจทำข้อตกลงหรือสัญญาใดๆ
• ข้อมูล ราคา และเงื่อนไขใดๆ ของอสังหาริมทรัพย์นี้ ได้รับมาจากการแจ้ง และสงวนสิทธิ์ในการเปลี่ยนแปลงใดๆ โดยไม่ต้องแจ้งให้ทราบล่วงหน้า โดยเจ้าของอสังหาริมทรัพย์, ทางเว็บไซต์ของเราไม่สามารถการันตีความถูกต้องของข้อมูลจากการเปลี่ยนแปลงดังกล่าว ดังนั้นผู้ซื้อหรือผู้เช่า จะต้องตรวจสอบความถูกต้องของ ข้อมูล ราคา และ เงื่อนไข กับทางเจ้าของอสังหาริมทรัพย์อีกครั้ง ก่อนที่จะตัดสินใจทำข้อตกลงหรือสัญญาใดๆ
กำลังก่อสร้าง |
เข้าถึงได้ง่าย |
แก้ไขล่าสุด || 25 ก.พ. 2569
สถานที่
จังหวัด
ระยอง
ประเภทผังเมือง
สีม่วง (อุตสาหกรรม, โรงงานและโกดัง)
เงื่อนไขการเช่า
ภาษี & ค่าธรรมเนียม
ภาษีโรงเรือน : ไม่รวม (ผู้เช่าจ่าย)
ภาษีหัก ณ ที่จ่าย (5% / เดือน) : ไม่รวม (ผู้เช่าจ่าย)
ภาษีหัก ณ ที่จ่าย (5% / เดือน) : ไม่รวม (ผู้เช่าจ่าย)
• ในกรณีการเช่า นอกเหนือจากค่าเช่าปกติ ผู้เช่าจะต้องชำระภาษีโรงเรือนเพิ่มอีก
ระยะเวลาทำสัญญาขั้นต่ำ
3 ปี
ค่ามัดจำสัญญา
4 เดือน
จ่ายชำระล่วงหน้า
1 เดือน
ระบบโครงสร้างพื้นฐาน
การรับน้ำหนักของพื้น
รองรับมากที่สุด : 5 ตัน / ตร.ม.ความสูงจากพื้นถึงโครงสร้างหลังคา
ความสูงมากที่สุด : 10 เมตรไฟฟ้า
มีเฉพาะระบบไฟฟ้าปกติและไฟฟ้าแสงสว่าง ไม่มีระบบไฟฟ้า / หม้อแปลง / แผงควบคุม สำหรับการใช้งานในโรงงาน, ต้องติดตั้งเองหากต้องการประปา
มีเฉพาะระบบประปาปกติ ไม่มีสำหรับรองรับการใช้งานสำหรับอุปกรณ์โรงงาน, ต้องติดตั้งท่อและปั๊มเองหากต้องการการตกแต่งภายในอาคาร
ไม่มี (ต้องก่อสร้างเพิ่ม)ระบบเครื่องปรับอากาศ
โรงงาน : ไม่มี (ต้องติดตั้งเอง ถ้าต้องการ)ออฟฟิศ : ไม่มี (ต้องติดตั้งเอง ถ้าต้องการ)
สิ่งอำนวยความสะดวก
การรักษาความปลอดภัย
● ป้อม รปภ.● CCTV
การป้องกันไฟไหม้
● ถังดับเพลิง / ท่อดับเพลิง● สัญญาณเตือนไฟไหม้
● เครื่องตรวจจับควัน

















