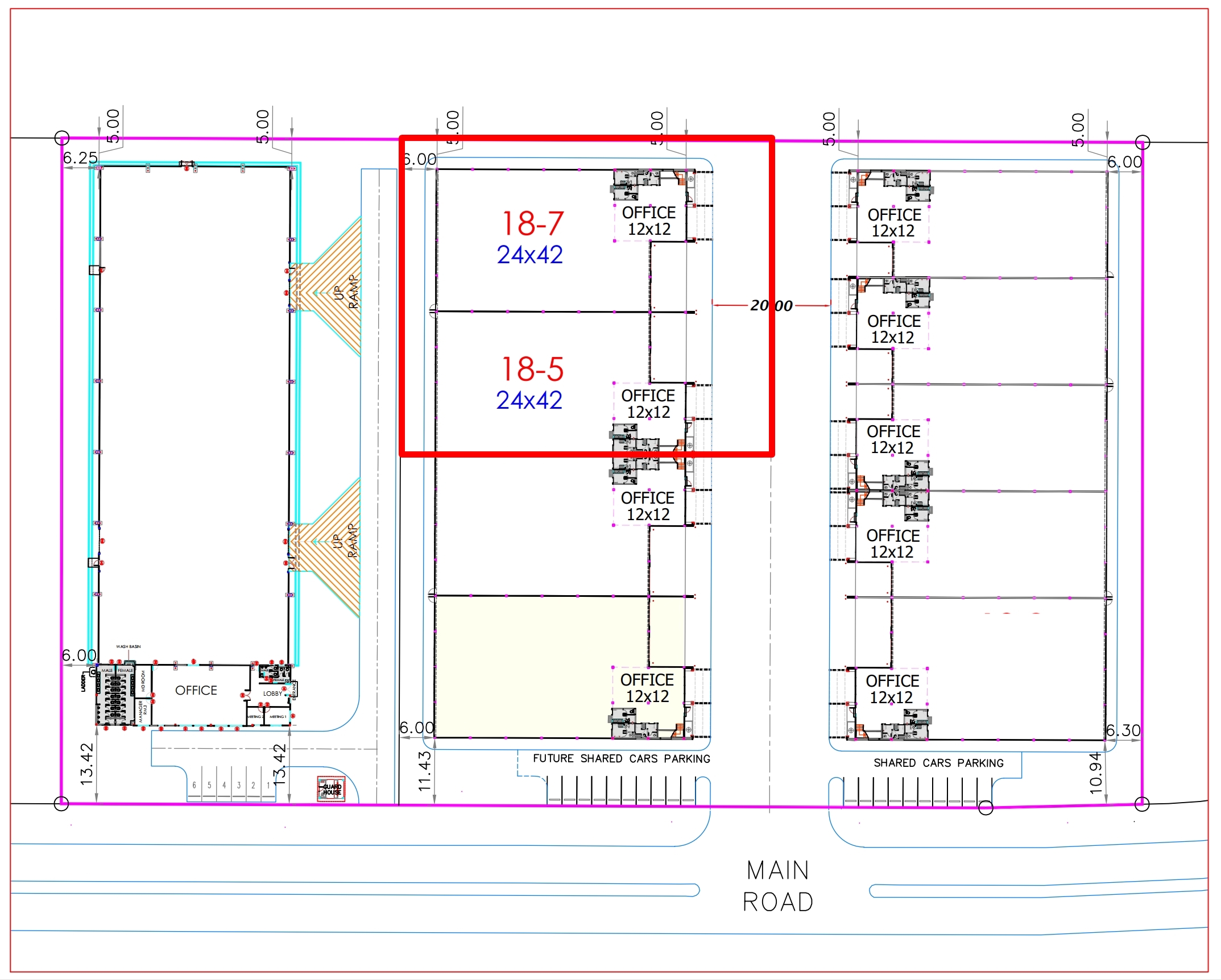
Factory / Warehouse - HTK1F0002

Property - Overview
|
Total Building Area
2,304 ㎡Factory / Warehouse Area : 1,948 ㎡ Office Area : 356 ㎡ Building Type : Attach 2 unit combine.
Zone Type General Zone
|
Rental
414,720 Baht / Month(Approx. 12,856 USD / Month) Price per ㎡ : 180 Baht / ㎡ / Month (Approx. 6 USD / ㎡ / Month) • May have monthly expenses more than just monthly rent. See information below or ask before make any decision.
Available Date Available Now
|
• 1Baht = About 0.031 USD, 1USD = About 32.18 Baht (Refer to Bangkok Bank currency transfer rate on 29 Oct 2025)
• More information about additional cost and condition, please see below.
• Information, price and condition of this property provided and also reserved the rights to change without notice by the property owner. Thai-Koujyo.com can't guarantee any change of that. Buyer or lessor have to confirm the final information, price and condition with the property owner before making any contract.
• Information, price and condition of this property provided and also reserved the rights to change without notice by the property owner. Thai-Koujyo.com can't guarantee any change of that. Buyer or lessor have to confirm the final information, price and condition with the property owner before making any contract.
Secondhand |
Last Update || 24 Dec 2025
4K Drone Gallery
Location
Province
Prachinburi
Common Fee
Factory / Warehouse
General Zone : Included in Rental Fee
Land
General Zone : 900 Baht / Rai / Month
Rent Condition
Minimum Contract Period
3 Year(s)
Contract Deposit
3 Month(s)


























