โรงงาน / โกดัง - ASI1F0058


อสังหาริมทรัพย์ - ภาพรวม
|
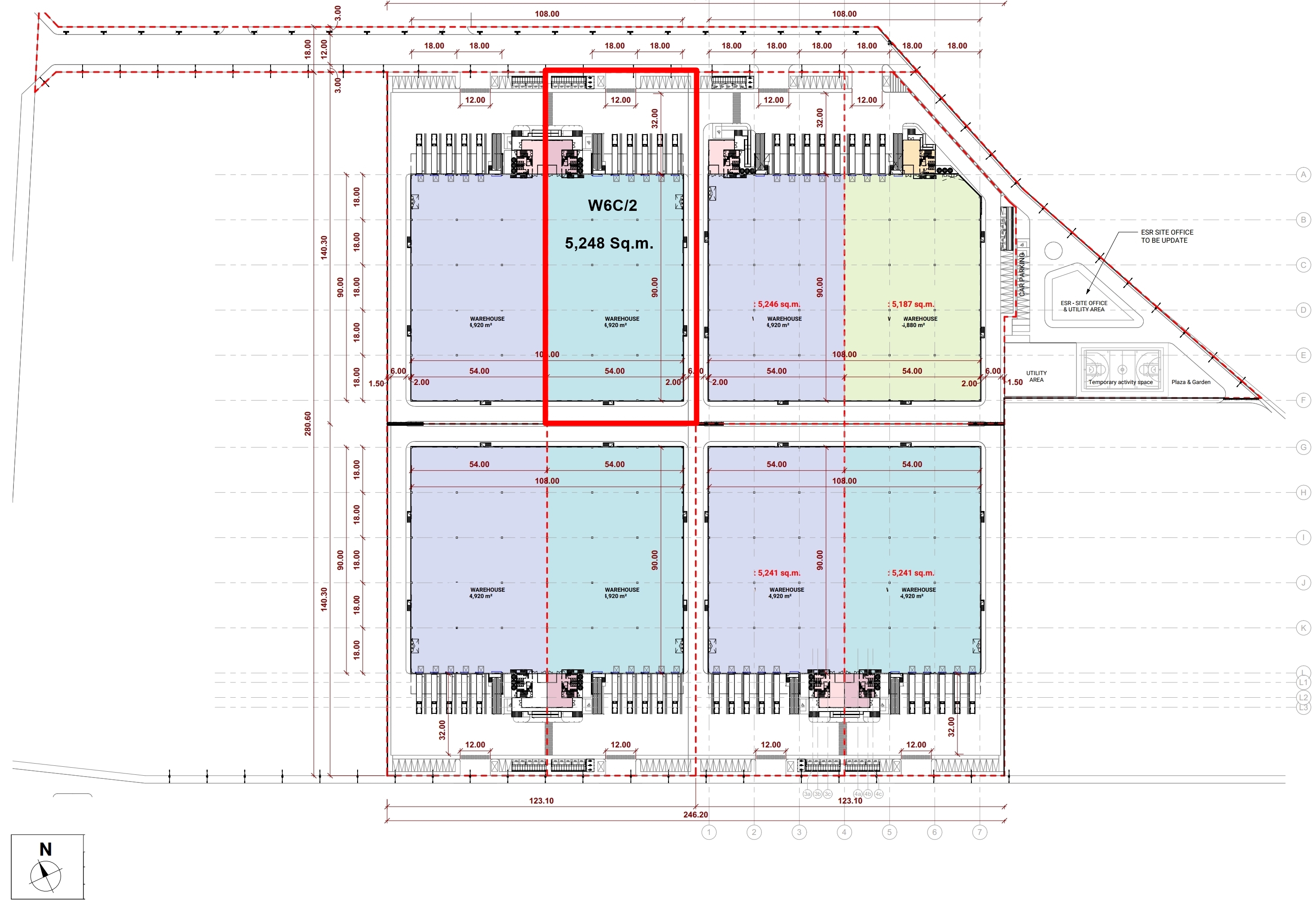
พื้นที่อาคารโดยรวม
5,248 ㎡พื้นที่โรงงาน / โกดัง : 4,920 ㎡
พื้นที่ออฟฟิศ : 328 ㎡ ประเภทอาคาร : อาคารแฝด ขนาดพื้นที่ที่ดิน
5-1-36 ไร่ (8,544 ㎡)ขนาดโดยประมาณ ประเภทเขตพื้นที่ เขตอุตสาหกรรมทั่วไป
|
ค่าเช่า
1,049,600 บาท / เดือนราคาต่อตารางเมตร : 200 บาท / ㎡ / เดือน • อาจมีค่าใช้จ่ายเพิ่มเติมในแต่ละเดือนนอกเหนือจากค่าเช่า ดูข้อมูลเพิ่มเติมด้านล่างหรือสอบถามก่อนตัดสินใจ
วันที่สามารถเข้าใช้ได้ ทำสัญญาแล้ว
|
• รายละเอียดเกี่ยวกับค่าใช้จ่ายและเงื่อนไขเพิ่มเติม ดูข้อมูลด้านล่าง
• ข้อมูล ราคา และเงื่อนไขใดๆ ของอสังหาริมทรัพย์นี้ ได้รับมาจากการแจ้ง และสงวนสิทธิ์ในการเปลี่ยนแปลงใดๆ โดยไม่ต้องแจ้งให้ทราบล่วงหน้า โดยเจ้าของอสังหาริมทรัพย์, ทางเว็บไซต์ของเราไม่สามารถการันตีความถูกต้องของข้อมูลจากการเปลี่ยนแปลงดังกล่าว ดังนั้นผู้ซื้อหรือผู้เช่า จะต้องตรวจสอบความถูกต้องของ ข้อมูล ราคา และ เงื่อนไข กับทางเจ้าของอสังหาริมทรัพย์อีกครั้ง ก่อนที่จะตัดสินใจทำข้อตกลงหรือสัญญาใดๆ
• ข้อมูล ราคา และเงื่อนไขใดๆ ของอสังหาริมทรัพย์นี้ ได้รับมาจากการแจ้ง และสงวนสิทธิ์ในการเปลี่ยนแปลงใดๆ โดยไม่ต้องแจ้งให้ทราบล่วงหน้า โดยเจ้าของอสังหาริมทรัพย์, ทางเว็บไซต์ของเราไม่สามารถการันตีความถูกต้องของข้อมูลจากการเปลี่ยนแปลงดังกล่าว ดังนั้นผู้ซื้อหรือผู้เช่า จะต้องตรวจสอบความถูกต้องของ ข้อมูล ราคา และ เงื่อนไข กับทางเจ้าของอสังหาริมทรัพย์อีกครั้ง ก่อนที่จะตัดสินใจทำข้อตกลงหรือสัญญาใดๆ
กำลังก่อสร้าง |
แก้ไขล่าสุด || 21 ต.ค. 2568
คอมเมนต์
โรงงานแฝด เพิ่งสร้างเสร็จใหม่ มีการทำผนังกั้นระหว่างยูนิตให้เรียบร้อย จึงเหมาะสมมากถ้าคุณต้องการพื้นที่ใช้สอยประมาณ 5,000 ตารางเมตร รองรับน้ำหนักได้ถึง 5 ตัน / ตารางเมตร สามารถรองรับการวางเครื่องจักรขนาดใหญ่ มีประตูชัตเตอร์ สำหรับโหลดสินค้า หรือวัตถุดิบ ด้วยรถคอนเทนเนอร์ขนาด 40 ฟุด ได้อย่างสะดวก unit ละ 5 ประตู
อีกทั้งที่ตั้งโรงงานมีความสะดวกในการขนส่ง โดยใช้ถนนมอเตอร์เวย์ หมายเลข 7 ไปยัง กรุงเทพฯ, ชลบุรี ระยอง และการขนส่งทางสนามบินสุวรรณภูมิ ได้อย่างสะดวก
วิดิโอโดรน 4K
สถานที่
จังหวัด
สมุทรปราการ
ประเภทผังเมือง
สีม่วง (อุตสาหกรรม, โรงงานและโกดัง)
ค่าส่วนกลาง
โรงงาน / โกดัง
เขตอุตสาหกรรมทั่วไป : รวมในค่าเช่าแล้ว
ที่ดิน
เขตอุตสาหกรรมทั่วไป : 1,971 บาท / ไร่ / เดือน
ค่าบำรุงรักษาคันดินกันน้ำท่วม (พ.ศ. 2565): 300 บาทต่อไร่ต่อเดือน
(ค่าบริการทั้งหมดยังไม่รวมภาษีมูลค่าเพิ่ม)
ค่าบำรุงรักษาคันดินกันน้ำท่วม (พ.ศ. 2565): 300 บาทต่อไร่ต่อเดือน
(ค่าบริการทั้งหมดยังไม่รวมภาษีมูลค่าเพิ่ม)
เงื่อนไขการเช่า
ภาษี & ค่าธรรมเนียม
ภาษีโรงเรือน : รวมแล้ว (เจ้าของจ่าย)
ภาษีหัก ณ ที่จ่าย (5% / เดือน) : ไม่รวม (ผู้เช่าจ่าย)
ภาษีหัก ณ ที่จ่าย (5% / เดือน) : ไม่รวม (ผู้เช่าจ่าย)
• ในกรณีการเช่า นอกเหนือจากค่าเช่าปกติ ผู้เช่าจะต้องชำระภาษีโรงเรือนเพิ่มอีก
ระยะเวลาทำสัญญาขั้นต่ำ
3 ปี
ค่ามัดจำสัญญา
3 เดือน
จ่ายชำระล่วงหน้า
1 เดือน
ระบบโครงสร้างพื้นฐาน
การรับน้ำหนักของพื้น
รองรับมากที่สุด : 5 ตัน / ตร.ม.ความสูงจากพื้นถึงโครงสร้างหลังคา
ความสูงน้อยที่สุด : 12 เมตรไฟฟ้า
มีเฉพาะระบบไฟฟ้าปกติและไฟฟ้าแสงสว่าง ไม่มีระบบไฟฟ้า / หม้อแปลง / แผงควบคุม สำหรับการใช้งานในโรงงาน, ต้องติดตั้งเองหากต้องการประปา
มีเฉพาะระบบประปาปกติ ไม่มีสำหรับรองรับการใช้งานสำหรับอุปกรณ์โรงงาน, ต้องติดตั้งท่อและปั๊มเองหากต้องการการตกแต่งภายในอาคาร
ไม่มี (ต้องก่อสร้างเพิ่ม)ระบบโทรศัพท์
ไม่มีระบบสาย ตู้สาขา เครื่องโทรศัพท์, ต้องติดตั้งเองหากต้องการระบบอินเตอร์เน็ต
ไม่มี ต้องติดต่อผู้ให้บริการ และติดตั้งเองหากต้องการระบบเครื่องปรับอากาศ
โรงงาน : ไม่มี (ต้องติดตั้งเอง ถ้าต้องการ)ออฟฟิศ : ไม่มี (ต้องติดตั้งเอง ถ้าต้องการ)
สิ่งอำนวยความสะดวก
การรักษาความปลอดภัย
● รปภ. ส่วนกลาง● CCTV
การป้องกันไฟไหม้
● ถังดับเพลิง / ท่อดับเพลิง● สปริงเกลอร์ดับไฟ
● สัญญาณเตือนไฟไหม้
ที่จอดรถ
● มีที่จอด 5 คัน ภายในที่ดินของโรงงาน● มีพื้นที่สำหรับจอดได้ประมาณ 12 คัน ภายในที่ดินของโรงงาน
Additionally, trailers can be parked in front of the dock leveler
หม้อแปลงไฟฟ้า
มี200 KVA. ** If usage exceeds 200 KVA, a new transformer must be requested.



























