Factory / Warehouse - AMN1F0155

|
Property - Overview
|
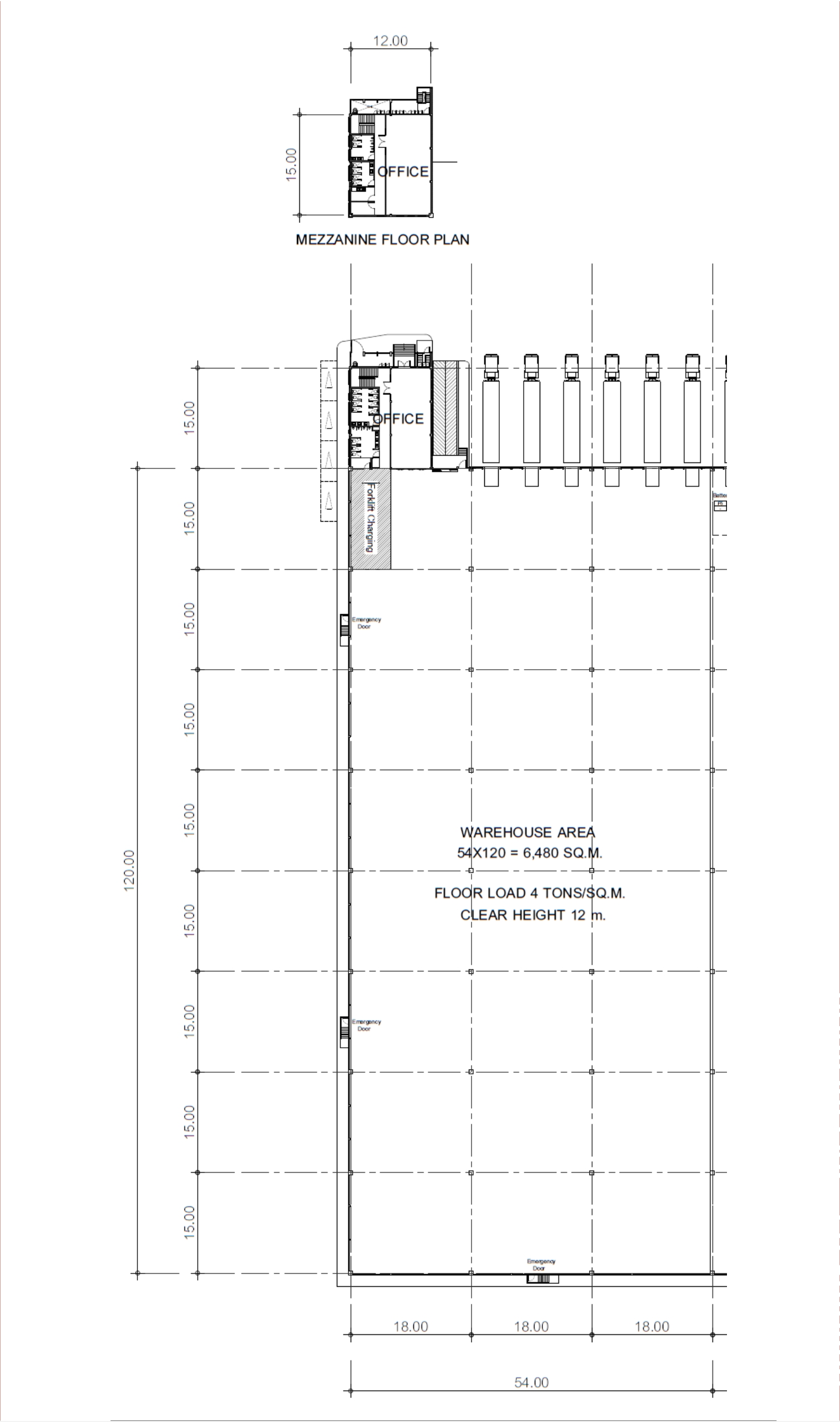
Total Building Area
6,840 ㎡Factory / Warehouse Area : 6,480 ㎡
Office Area : 360 ㎡ Building Dimension : 54X120 m. Building Type : Partitioned Land Area
6.17205 Rai (9,875.28 ㎡)
Zone Type General Zone
|
Rental
1,368,000 Baht / Month(Approx. 42,408 USD / Month) Price per ㎡ : 200 Baht / ㎡ / Month (Approx. 6 USD / ㎡ / Month) • May have monthly expenses more than just monthly rent. See information below or ask before make any decision.
Available Date Nov 2026
|
• 1Baht = About 0.031 USD, 1USD = About 32.18 Baht (Refer to Bangkok Bank currency transfer rate on 29 Oct 2025)
• More information about additional cost and condition, please see below.
• Information, price and condition of this property provided and also reserved the rights to change without notice by the property owner. Thai-Koujyo.com can't guarantee any change of that. Buyer or lessor have to confirm the final information, price and condition with the property owner before making any contract.
• Information, price and condition of this property provided and also reserved the rights to change without notice by the property owner. Thai-Koujyo.com can't guarantee any change of that. Buyer or lessor have to confirm the final information, price and condition with the property owner before making any contract.
New Construction |
Many Interest |
Last Update || 15 Jan 2026
Location
Province
Chonburi
City Zoning
Purple (Industrial and Warehouse)
Rent Condition
Minimum Contract Period
3 Year(s)
Contract Deposit
6 Month(s)
Infrastructure
Floor Loading
Max. Loading : 4 Ton(s) / sq.m.Clearing Height
Max. Height : 12 m.Electricity
Only electric system and lighting for basic usage. Don't have electric system, transformer, MDB for industrial usage. Require installation if needed.Water Supply
Only water supply for basic usage. Don't have water system for factory equipments. Require plumbing work and pump installation if needed.Interior Decoration
Don't have. (Require construction)Telephone System
Don't have wiring, PBX, telephone. Require installation if needed.Internet System
Don't have. Require contract ISP (internet service provider) and installation if needed.Air Condition System
Factory : Don't have. (Self install, if need)Facilities
Security
● Shared Security (Security Gate)Fire Protection
● Fire Extinguisher / Fire Hose● Fire Alarm
● Smoke Detector
Parking
● Fix 4 car(s) inside land of factoryTransformer
Have160 KVA/unit
Shutter Door
HaveLoading Dock & Dock Leveler 6
























