工場・倉庫 - OSD1F0009
Bangna-Trad Km.36


物件 - 概要
|
建屋面積合計
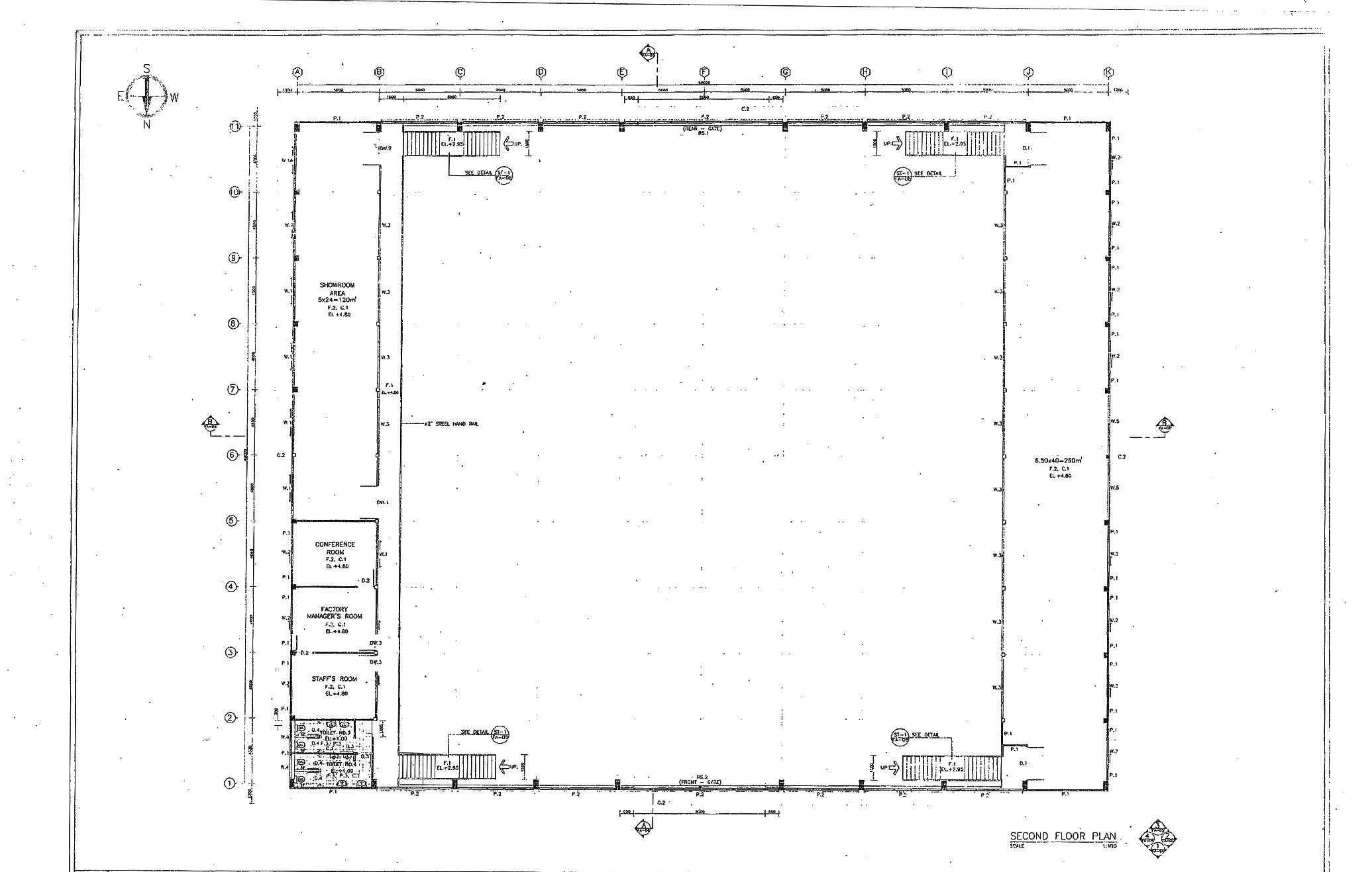
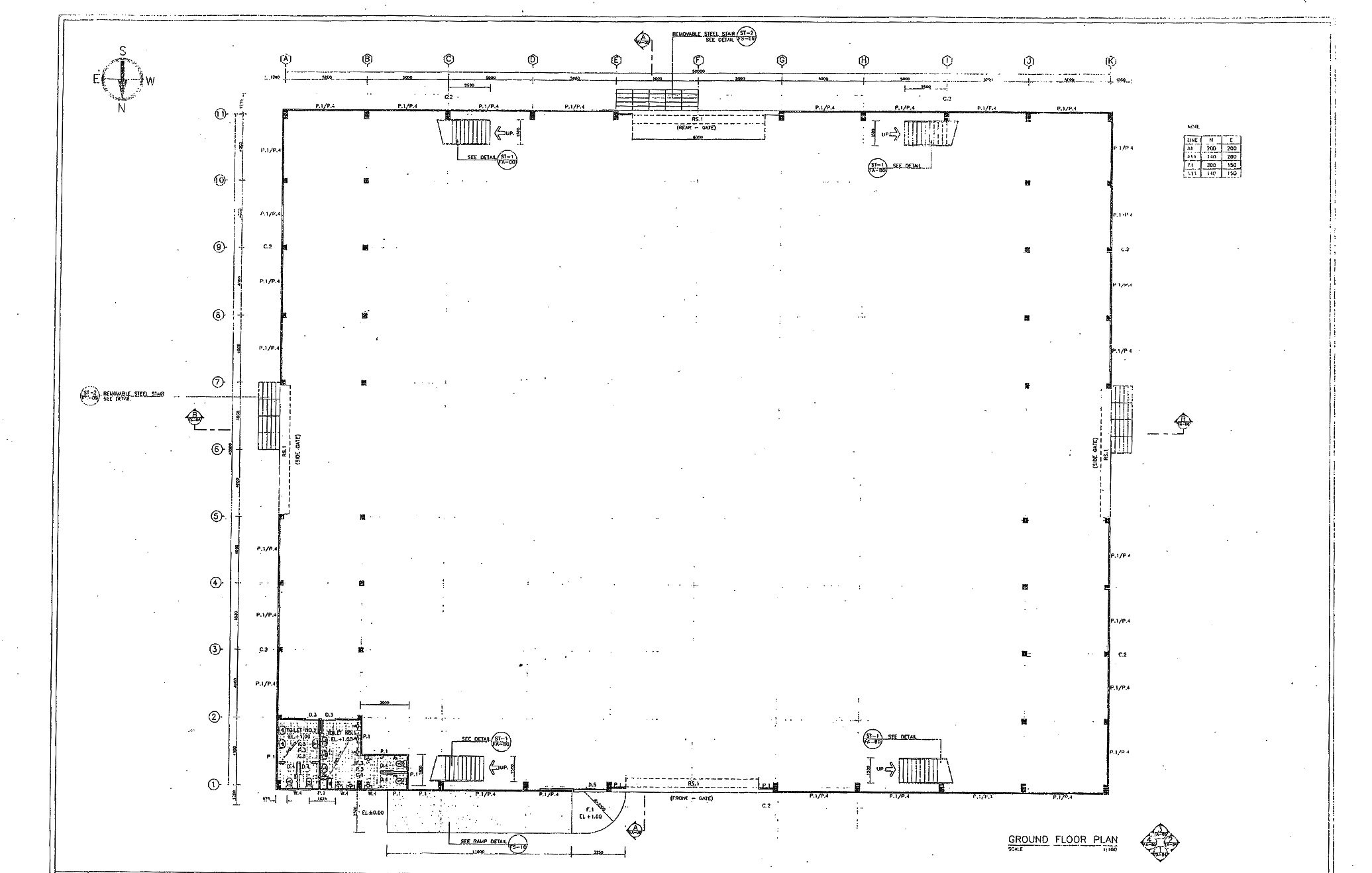
2,520 ㎡ (764 坪)工場・倉庫面積 : 2,000 ㎡
事務所面積 : 520 ㎡ 建屋サイズ : 40 X 50 m. 建屋の形式 : 戸建て 工業用地サイズ
6.9775 ライ (11,164 ㎡ | 3,383 坪)
ゾーン区分 ゼネラル・ゾーン(一般加工区)
|
家賃
250,000 バーツ / 月(約118万円 / 月) 、(約7,750 USD / 月) 平米単価 : 99 バーツ / ㎡ / 月 (約467円 / ㎡ / 月) 、(約3 USD / ㎡ / 月) ※ 現在の賃貸価格に諸税等が別途係る場合があります。下記のその他費用の項目の掲載欄をご確認されるか、個別にお尋ね下さい。
価格
60,000,000 バーツ(約2億8260万円) 、(約1,860,000 USD) 入居・購入可能日 売約済み
|
※ 1 バーツ (Baht)=約4.71円、1円=約0.212バーツ 、
1 バーツ (Baht)=約0.031 USD, 1 USD=約32.18 バーツ
( バンコク銀行レート:2025年10月29日現在 ) ※ 上記記載の販売価格以外に、諸税等や、手数料などは下記に記載がありますので、ご確認下さい。
※ 掲載の物件の売買・賃貸の条件は大家(オーナー)からの情報を元に正確を期して作成をしております。 但し、当運営サイトでは、その情報の正確性、完全性を保証するものではありません。大家(オーナー)の判断により今後予告なしに変更される事があります。 購入者、賃貸者は必ず購入、賃借の前に大家(オーナー)に条件をご確認下さい。また、購入、賃貸に際してはご自身の判断でなされる様お願い申し上げます。弊社は、それらに関しての一切の責任を負いません。
( バンコク銀行レート:2025年10月29日現在 ) ※ 上記記載の販売価格以外に、諸税等や、手数料などは下記に記載がありますので、ご確認下さい。
※ 掲載の物件の売買・賃貸の条件は大家(オーナー)からの情報を元に正確を期して作成をしております。 但し、当運営サイトでは、その情報の正確性、完全性を保証するものではありません。大家(オーナー)の判断により今後予告なしに変更される事があります。 購入者、賃貸者は必ず購入、賃借の前に大家(オーナー)に条件をご確認下さい。また、購入、賃貸に際してはご自身の判断でなされる様お願い申し上げます。弊社は、それらに関しての一切の責任を負いません。
中古物件 |
アクセス良 |
最終更新日 || 2020年12月15日
物件コメント
バンコクからバンナー高速をウェルグロー工業団地の向かい側のsoiを約1.2km入った地点。 工場は、2500平米で、2000平米が工場部分、500平米が2階建てでオフィス部分となっている。 工場の裏側に176平米のストレージ用の建屋があり。(耐荷重は2t) 4枚の自動ドアあり。8 (横) X 3 (高さ) m. 入り口のフェンスゲートは幅12m。 駐車場エリアは建屋敷地内に多数あり。 退去から日が経っているので、購入や、賃貸する際には、リノベーション等が必要。 (賃貸の場合には、オーナー側にて清掃等をおこなってくれる)
ロケーション
県
チャチュンサオ
賃貸基本条件
最低契約期間
3 年間
敷金(デポジット)
3 ヶ月
前家賃
1 ヶ月
販売基本条件
インフラ設備
耐加重
耐加重 工場の主要エリア : 2-3 t / 平米耐荷重は、 2-3 t./㎡
床の杭のサイズは0.35X0.35で、深さは28 m.
床は、1.1 m.の盛り土がされている。
天井高(天頂部高さ)
最大高 : 6.7 m.電気
なし(工場、オフィス部分の照明配線のみ。工場内配線、変圧器、配電盤などなし。必要な場合は自社にて設置工事。)天井照明等はあり
物件の内装工事・設備工事の現状
なし(必要な場合は自社にて設置工事)リノベーション、メンテナンス等が必要
電話設備 回線設定
なし(電話線ジャック、電話交換機、電話機なし。必要な場合は自社にて設置工事。)電話線接続口は、30箇所あり
インターネット配線・サーバ等システム
なし(必要な場合はプロバイダーに連絡し、設置工事。)エアコン・システム
工場 : なし(必要な場合は自社にて設置)オフィス部分のみエアコンあり
施設・設備
駐車場
● 工場敷地内に 10 台分の駐車場あり● 工場敷地内に駐車スペースが約 50 台分あり
拡張のスペース有り、若しくは、駐車場として利用可能
工場内変圧器設備
あり500 KVAX1
シャッター・ドア
あり4箇所にゲート有り 8 (横) X 3 (縦) m.
キャンティーン(食堂)
● 物件内キャンティーン(食堂)288平米のキャンティーンスペース有り











































